Standort: Germaringen, Bayern

Charmante Doppelhaushälfte
– ideal für Kapitalanleger &Mehrgenerationenfamilien

 
 

Diese charmante Doppelhaushälfte aus dem Jahr 1974 befindet sich in einer angenehm ruhigen Wohnsiedlung von Germaringen und bietet mit drei vollständig abgeschlossenen Wohneinheiten ideale Voraussetzungen für Kapitalanleger oder ein Mehrgenerationenmodell. Ein großzügiger Anbau aus dem Jahr 1995 erweitert das Raumangebot und schafft zusätzliche Wohnqualität.

Beim Betreten des Hauses gelangen Sie in das zentrale Treppenhaus, von dem aus alle drei Wohnungen separat erreichbar sind. Die Erdgeschosswohnung überzeugt mit einem hellen Wohn- und Essbereich, einer modernen Einbauküche sowie einem Gäste-WC. Vom Esszimmer aus öffnet sich der Zugang zur gemütlichen Terrasse und dem liebevoll angelegten Garten. Hier lädt ein 2021 installierter Pool zu entspannten Stunden ein. Der angrenzende Anbau bietet im Erdgeschoss ein Schlafzimmer, ein Badezimmer und ein Kinderzimmer. Eine Wendeltreppe führt in das Dachgeschoss des Anbaus, wo zwei weitere Kinderzimmer zur Verfügung stehen.

Im Obergeschoss erwartet Sie eine großzügige Wohnung mit einer einladenden Wohnküche samt Balkonzugang, einem weitläufigen Wohnzimmer, zwei Schlafzimmern, einem Badezimmer sowie einem separaten Gäste-WC. Die Dachgeschosswohnung bietet ein gemütliches Wohnzimmer, eine weitere Wohnküche, ein Schlafzimmer, ein Badezimmer und einen praktischen Abstellraum. Die Dachfenster wurden hier in den letzten Jahren erneuert.

Das Haus ist vollunterkellert und verfügt über vier Kellerräume, einen Heizraum sowie eine Waschküche. Eine Einzelgarage im Erdgeschoss rundet dieses vielseitige Angebot ab.


grunddaten

Kategorie: Doppelhaushälfte
Baujahr: 1974
Anbau: 1995
Etagen: 3
Energieträger: Gas
Heizungsart: Zentralheizung
Stellplatz: ein Garagenstellplatz


Status: frei, ab sofort Verfügbar


immobilienanfrage


wohnfläche und raumangebot

 

Grundstücksfläche

Total: 521,00 m²

Total: 267,00 m²

Wohnfläche

Total: 102,24 m² (40,07 m²)

Erdgeschoss (+Anbau)

Total: 112,29 m²

Obergeschoss

Total: 52,70 m²

Dachgeschoss

 

13 Zimmer

|

3 Badezimmer

|

2 Gäste-WC

|

3 Küchen

|

13 Zimmer | 3 Badezimmer | 2 Gäste-WC | 3 Küchen |

 

*AB SOFORT VERFÜGBAR*


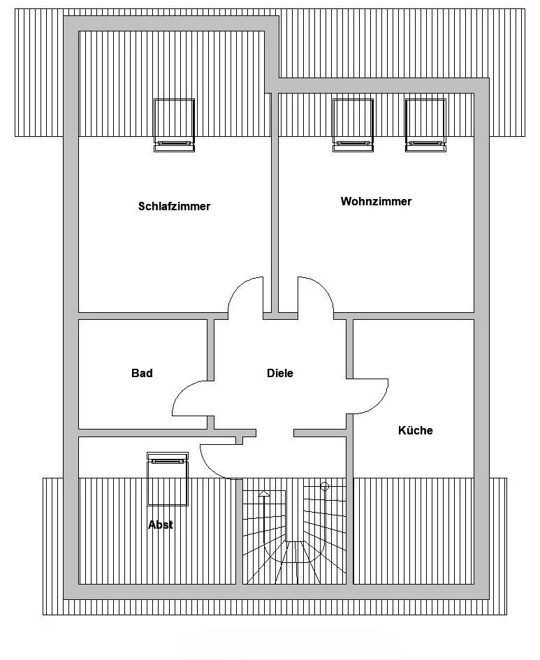
Grundrisse

Diese Zeichnung dient nur zur Übersicht und ist nicht Maßgerecht.


Kosten:

Kaufpreis: 749.000,00 EUR
Käuferprovision: 3,57 % (inkl. 19 % MwSt.)


energieausweis

Der Energieausweis ist bereits beantragt und befindet sich in Vorbereitung.



ausstattung und highlights

› Vollunterkellerung mit vier Kellerräumen, einen Heizraum sowie eine Waschküche.

› Doppelhaushälfte mit großzügigem Anbau für mehr Wohnkomfort

› Boden: Fließen, Parkett, Teppich

ein Garagenstellplatz

› erneuerte Dachfenster

› Erdgeschoss: Terrasse und ein liebevoll angelegter Garten

› 2-fach verglaste, weiße Fenster

› Obergeschoss: Balkon

› Photovoltaik

› Highlight: Ein großer Pool im Garten, zur perfekten Abkühlung im Sommer


lage

Die Gemeinde Germaringen liegt im direkten Einzugsgebiet der Stadt Kaufbeuren und bietet eine schnelle Anbindung an die B12 Richtung München und Kempten. Vor Ort steht eine vollständige Infrastruktur zur Verfügung: Schule, Kindergarten, Ärzte, Apotheke sowie Geschäfte des täglichen Bedarfs.

Germaringen verfügt über ein breites Freizeitangebot. Ein aktiver Sportverein, ein Tennisclub sowie Möglichkeiten zum Eisstockschießen prägen das lebendige Vereinsleben. Die umliegende Landschaft lädt zu Wanderungen rund um den Georgiberg, ausgedehnten Radwegen und im Winter zu Langlauf- und Schneeschuhtouren ein.

Auch beruflich bietet die Region attraktive Perspektiven: Durch die Nähe zu mehreren Industrie- und Gewerbegebieten in Germaringen selbst sowie im Raum Kaufbeuren und Neugablonz besteht ein breites Spektrum an Arbeitsmöglichkeiten für unterschiedliche Qualifikationen.

Im Norden erreichen Sie bequem Landsberg am Lech und den Ammersee, im Süden das Voralpenland mit zahlreichen Badeseen, Wander- und Radwegen. Die historische Reichsstadt Kaufbeuren mit ihrem mittelalterlichen Charme liegt nur wenige Kilometer entfernt und bietet weiterführende Schulen, ein Klinikum sowie ein vielfältiges Kultur- und Freizeitangebot. Eine Busverbindung nach Kaufbeuren ist vorhanden.